Большой Тростенец, Зеленая ул., 1/А
Продаётся уютная 3-комнатная квартира в Большом Тростенце.
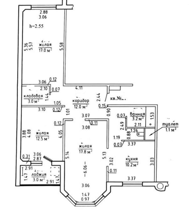
Площадь по СНБ - 79,8 м2, общая площадь - 76,8 м2, жилая площадь - 47,3 м2, площадь кухни - 10,2 м2.
Особенности квартиры:
Расположение: отличное транспортное сообщение, 2 остановки до метро "Могилёвская", в шаговой доступности гипермаркет "Green", "Светофор", детский сад, школы. Рядом зелёная зона.
Квартира с хорошей атмосферой ждет своего покупателя. Приглашаем на просмотр!
Оправьте ваш вопрос и мы вам поможем
