Минск, Южная ул., 22/А
Предлагается к продаже редкий объект на рынке недвижимости — коттедж, гармонично сочетающий южный шарм и столичный комфорт. Расположение в черте города обеспечивает доступ ко всем благам цивилизации, но при этом дарит уединение и свежий воздух загородной жизни.
За строгим фасадом дома скрыт венецианский стиль - это изысканное и торжественное направление, сочетающее в себе аристократизм, романтику и театральность, превращая дом в подобие роскошного дворца. Однако это не просто "дорого-богато", а скорее "богатая сдержанность", где важна каждая деталь.
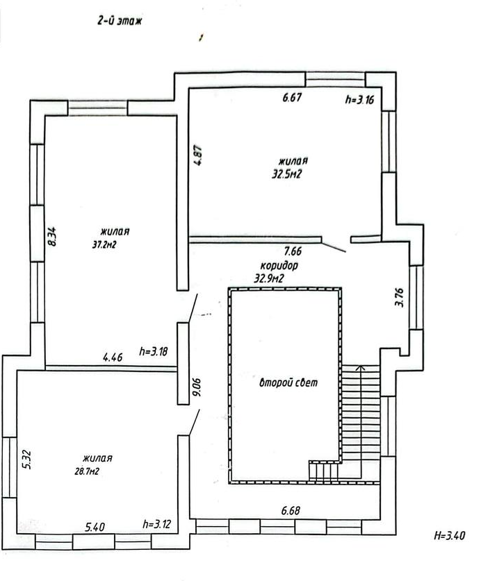
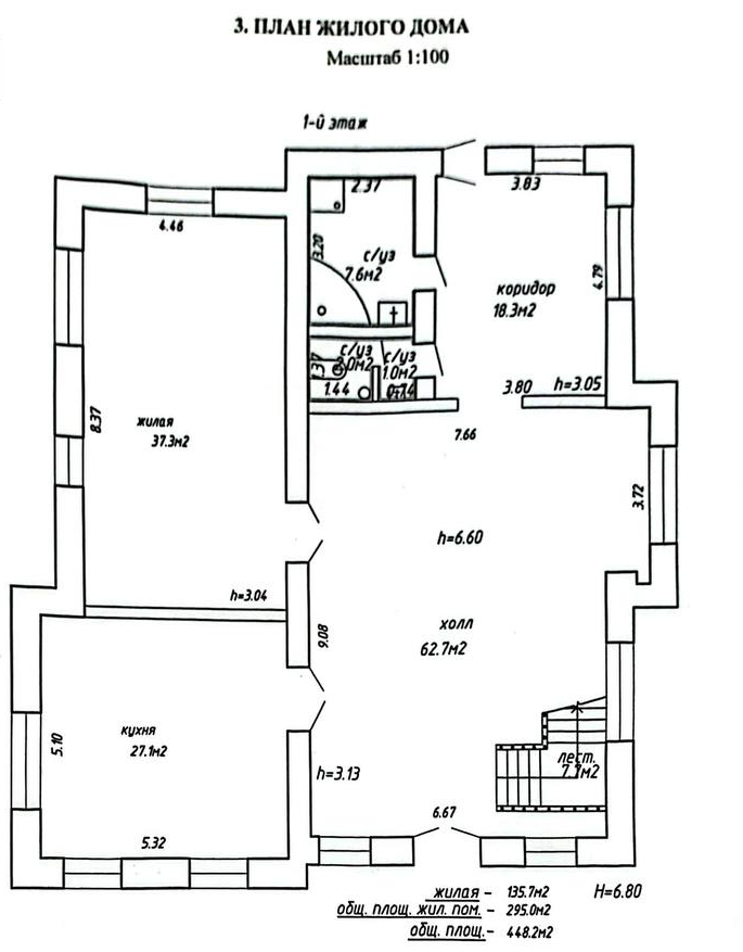
О доме: площадь дома по СНБ - 448,2 м2 , общая площадь - 295 м2 , жилая - 135,7 м2 .
Планировка:
Особенности интрерьера:
В интерьере использованы качественные натуральные материалы, стены и потолки декорированы гипсовой лепниной и картинами в позолоченных рамах. Центральным элементом дома является авторская кованая лестница. На полу уложена плитка из керамогранита с подогревом. Чешская люстра венчает этот интерьер.
Дом полностью укомплектован мебелью и техникой: кухня - производство Италия, техника - BOSCH.
Коммуникации: газ, водопровод, электричество (220-380v), местная канализация. Отопление на газу и на твердом топливе.
Участок: 7 соток земли, огорожнен забором.
Инфраструктура: Рядом торговый центр Корона, Материк. Прекрасное транспортное сообщение: быстрый доступ к центру, удобный выезд на МКАД.
Вся мебель, техника, предметы декора остаются новым владельцам.
Дом подойдет и для размещения офиса, компании, представительства.
Возможен торг!
Чистая продажа. Просмотр в любое удобное время.
Оправьте ваш вопрос и мы вам поможем
