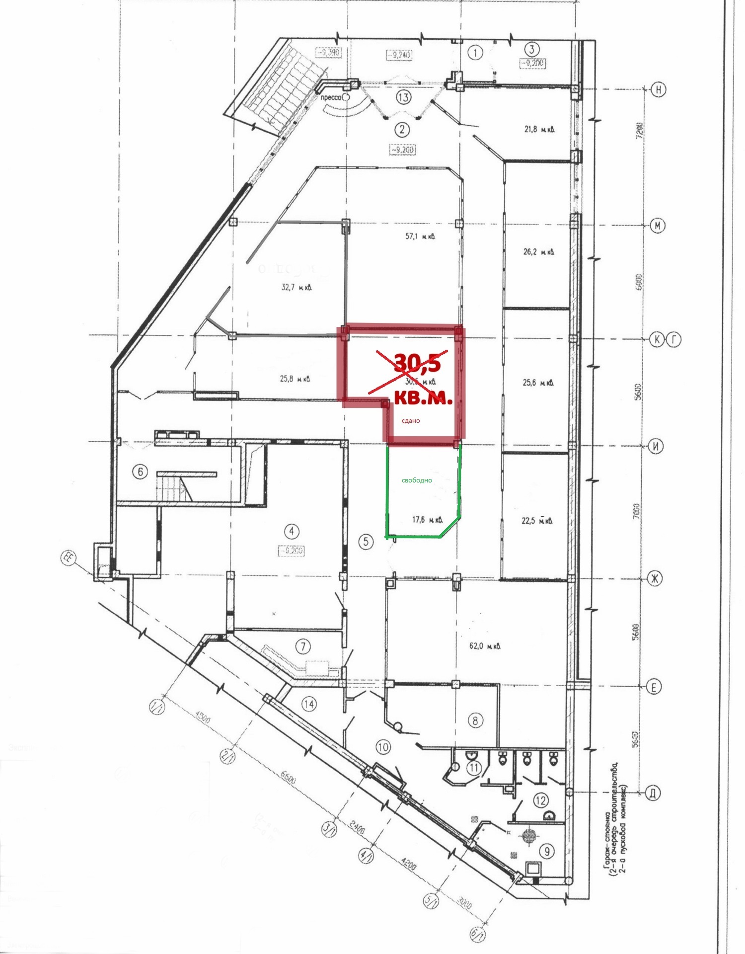
Торговое от 17,6 м.кв. ул. Богдановича, 134

Минск, Богдановича ул., 134

Общая стоимость: BYN 457
НДС 0

Вы не оплачиваете комиссию агентству!!!!

Аренда торгового помещения площадью 17,6 кв.м. на пером этаже, ул. Богдановича, 134.

Помещение расположено в жилом доме густонаселенного района на пересечении улиц Некрасова и Богдановича.

Торговое пространство исполнено в виде торговых галерей, образованное торговыми павильонами, преимущественно прямоугольной формы. Фасадная часть павильонов закрывается роллетами. В павильоны подведено электричество и отопление. Погрузо-разгрузочная зона позволяет завоз в течении всего рабочего дня.парковка, Есть скоростной интернет, парковка. Возможно размещение вывесок, рекламных конструкций и навигационных табличек.

Больше предложений смотрите на сайте Бюро городской недвижимости http://buro-realt.by/

Следите за нами в соцсетях и будьте в курсе новых предложений!

https://vk.com/buro_gn

https://www.instagram.com/buro_gn/

https://www.facebook.com/Бюро-городской-недвижимости-105720154578531

Адрес объекта


Район:Минский
Город:Минск
Улица:Богдановича ул.
№ дома:134

Параметры объекта


Общая площадь:

17.6 м2

Количество комнат:

2 комнаты

Cтоимость за м2:

26    

Удобства и особенности


Стены: блочный
Год постройки: 2012 г.
Этажность: 10
Этаж: 1
Ремонт: хороший ремонт
Электричество: есть
Тип объекта: Торговое помещение
Форма собств.: частная
Юр. адресс: есть
Условия: аренда
Водопровод: есть
Канализация: есть
Отопление: есть
Яскевич Олег

Яскевич Олег

Агент по недвижимости

Оправьте ваш вопрос и мы вам поможем