СТО, комплекс для грузовых авто

Новое Поле

Общая стоимость: BYN 37,120
с НДС

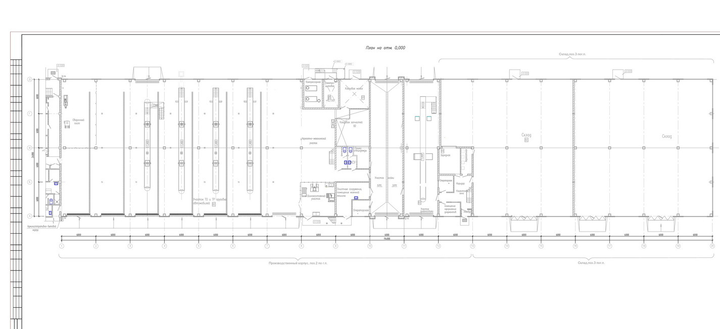
Многофункциональный комплекс для обслуживания грузовых транспортных средств.

  • Комплекс состоит из станции технического обслуживания (СТО), линии диагностики, мойки, складских площадей и административного комплекса.
  • Общая свободная площадь 1655 кв.м. (СТО, Мойка, Станция диаогностики).
  • Год постройки - 2023 год.
  • Локация: 23 км от МКАД, пересечение трасс М6 и М14, направление Вильнюс-Гродно, около д. Новое Поле (Минский район)
  • Все помещения объекта оборудованы необходимой инфраструктурой: приточно-вытяжная вентиляция, газ, электричество, вода и отопление.

Расположен на огороженной, круглосуточно охраняемой территории, выполнено благоустройство. Вся территория асфальтированная. Есть возможность для подъезда, маневрирования и разгрузки любого типа грузового транспорта. Прямой заезд к комплексу с дорог М6 и М14. На территории есть парковочные места для грузовых и легковых автомобилей.

Предлагаем к аренде следующие площади:

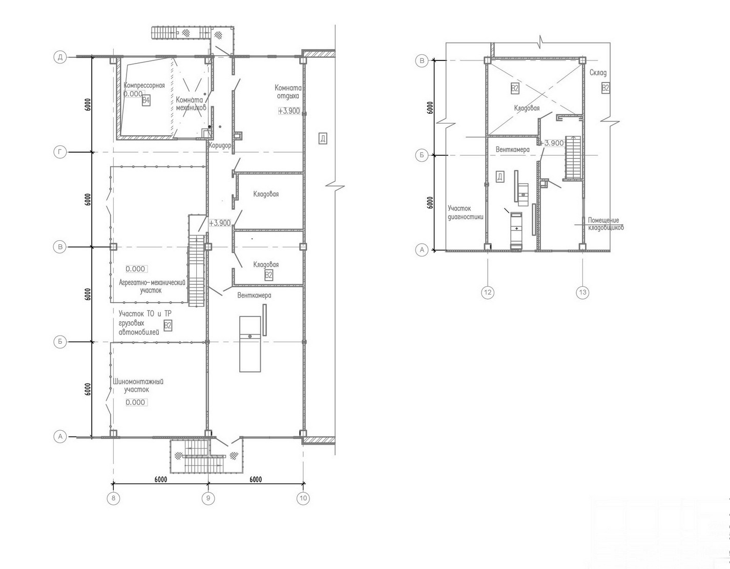
  1. СТО общей площадью 1280 кв.м. : 4 поста с ямами, в т.ч. один пост с возможностью сквозного проезда. Ямы оборудованы системами дымоудаления и сбора отходов, очистными сооружениями и освещением. 4 поста «ровный пол». Технические-вспомогательные помещения.
  • Характеристика: Конструкция здания СТО: железобетонный каркас, сэндвич-панель, окна ПВХ. Высота под балку 7,2 м. Система подача сжатого воздуха (два промышленных винтовых компрессора РЕМЕЗА). Ворота Hоrmann 4200х4500. Искусственное и отличное естественное освещение (пвх окна в два этажа и зенитные фонари в кровле). Выполнены отделочные работы. Возможна аренда СТО нескольким арендаторам (по частям от 145 кв.м.).
  • СТО может сдаваться отдельно (цену просим уточнять дополнительно по телефону).
  1. Мойка общей площадью 190 кв.м. : 1 грузовой пост, технические помещения.
  • Характеристика: Конструкция здания мойки: кирпич. Высота под балку 7,2 м. Система водооборота. Система подача сжатого воздуха (два промышленных винтовых компрессора РЕМЕЗА). Сквозной проезд. Скоростные ворота Hоrmann 2 шт 4200х4500. Выполнены отделочные работы: стены облицованы керамической плиткой на всю высоту. Возможность оказания услуг по мойке легкового транспорта.
  • Мойка может сдаваться отдельно (цену просим уточнять дополнительно по телефону).
  1. Линия диагностики общей площадью 185 кв.м. : 1 грузовой/легковой пост, клиентская зона и технические помещения.
  • Характеристика: Конструкция здания линии диагностики: кирпич. Высота под балку 7,2 м. Тормозной стенд 18т. Стенд детектор люфтов. Система дымоудаления. Система подача сжатого воздуха (два промышленных винтовых компрессора РЕМЕЗА). Сквозной проезд. Скоростные ворота Hоrmann 2 шт 4200х4500. Выполнены отделочные работы.
  • Линия диагностики может сдаваться отдельно (цену просим уточнять дополнительно по телефону).

  • Есть свободные административные и вспомогательные помещения в здании АБК.
  • Аренда долгосрочная (от года)! Дополнительно арендатором оплачиваются эксплуатационные расходы.
  • Собственник юр. лицо, является плательщиком НДС. Цена в объявлении указана с учетом НДС.
  • Арендатор не оплачивает комиссию агентству!

Подробно проконсультируем и предоставим всю необходимую дополнительную информацию. Поможем выгодно продать вашу недвижимость! Вы можете позвонить по телефону или написать нам в мессенджер! Следите за нами в Instagram и будьте в курсе новых предложений!

Адрес объекта


Город:Новое Поле

Параметры объекта


Общая площадь:

1280 м2

Количество комнат:

10 комнат

Cтоимость за м2:

29    

Удобства и особенности


Год постройки: 2023 г.
Этажность: 3
Этаж: 1
Высота потолков: 7.2
Ремонт: отличный ремонт
Электричество: есть
Тип объекта: СТО
Форма собств.: частная
Юр. адресс: есть
Условия: аренда
Водопровод: есть
Канализация: есть
Отопление: есть
Яскевич Олег

Яскевич Олег

Агент по недвижимости

Оправьте ваш вопрос и мы вам поможем