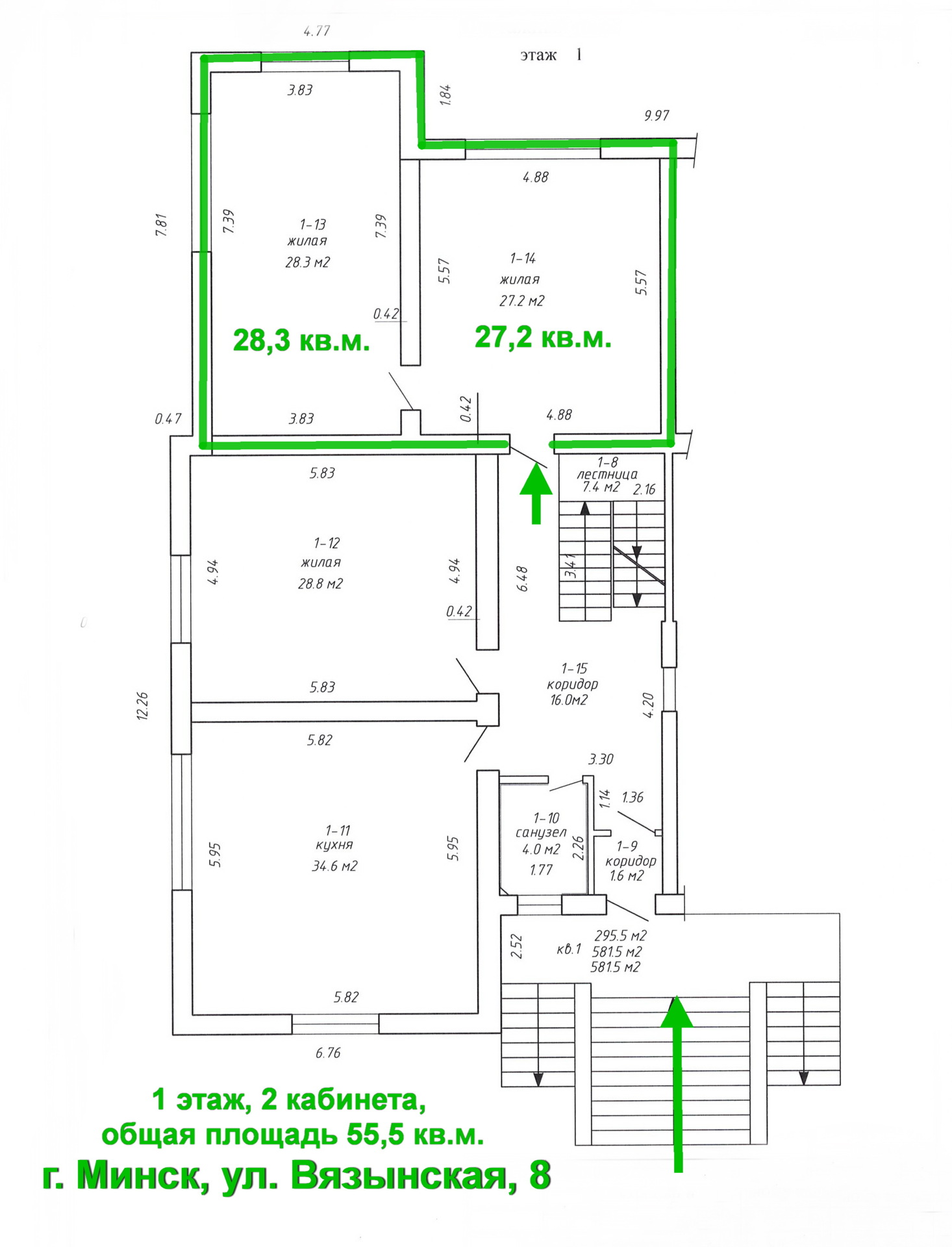
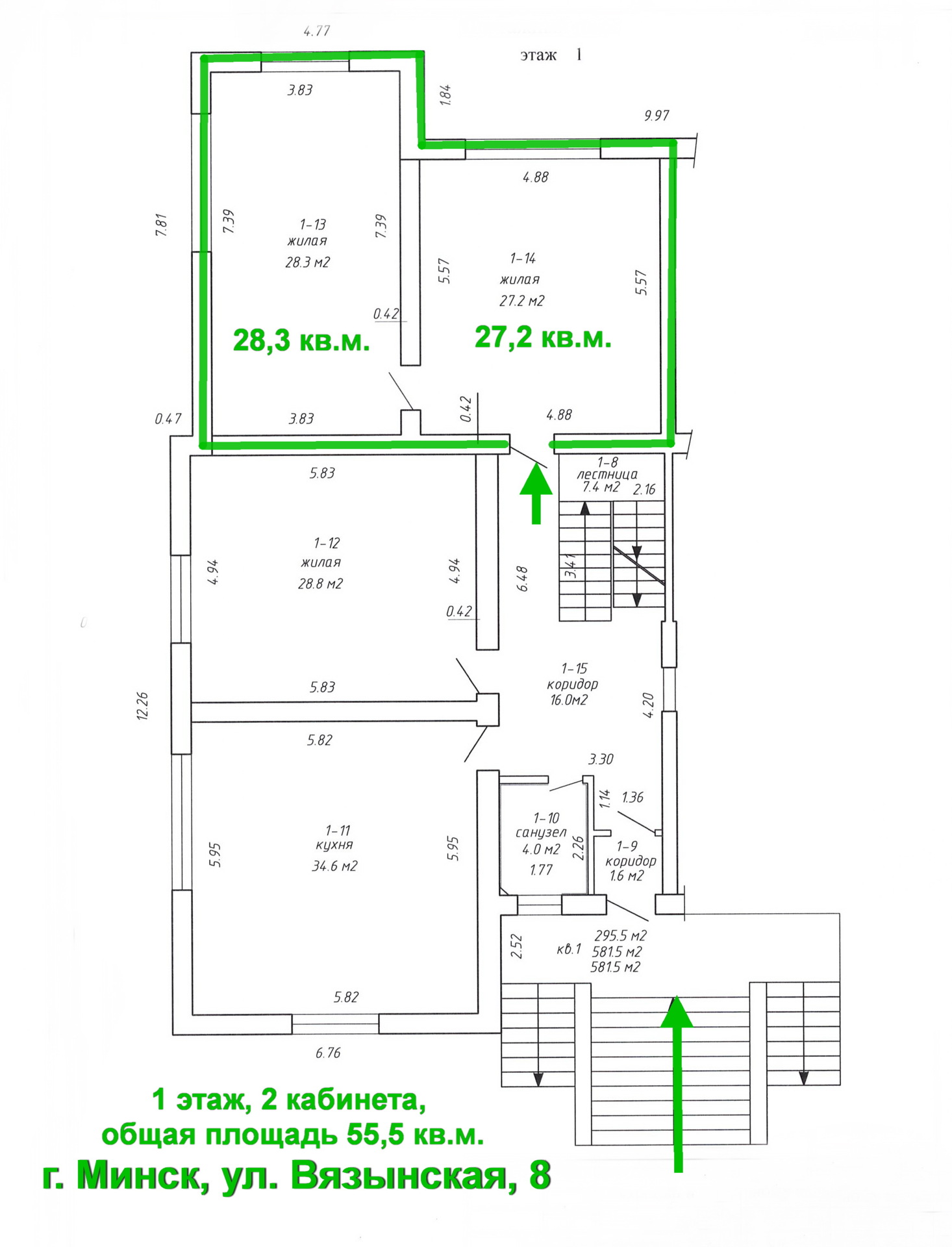
Минск, Вязынская ул., 8
Аренда офисного блока общей площадью 55,3 кв.м., расположенного в 3-х этажном коттедже, в г. Минске, ул. Вязынская, д.2 (300м от выезда на МКАД с ул. Масюковщина), Фрунзенский район.
Здание расположено недалеко от крупного перекрестка улиц Каменногорская-Вязынская-Люцинская-Масюковщина. Хорошо просматривается с дороги.
Удобные подъездные пути: 300м выезд на МКАД с ул. Масюковщина. Остановки общественного транспорта в шаговой доступности – 200м, до м. Каменная Горка 10-15 минут на общественном транспорте.
Подробно проконсультируем и предоставим всю необходимую дополнительную информацию. Поможем выгодно продать вашу недвижимость! Вы можете позвонить по телефону или написать нам в мессенджер! Следите за нами в Instagram и будьте в курсе новых предложений!
Оправьте ваш вопрос и мы вам поможем
